Archer Reality

Prodej bytu 2+kk/B/L, OV, 49m2, Praha 9 - Prosek, ul. Jablonecká

6 990 000,- Kč / za nemovitost + provize RK a právní servis

Váš makléř

Rostislav Sedláček
prohlidka@archer-reality.cz
+420 602 107 903

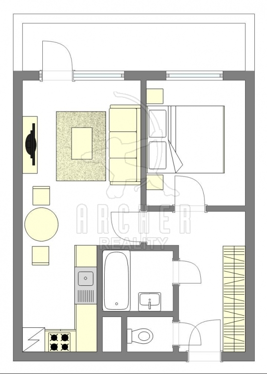
Nabízíme k prodeji byt 2+kk/B/L v OV, 49 m2, 6,50m2 balkon, 1,50m2 lodžie, Praha 9 - Prosek, ul. Jablonecká.
Byt je po kompletní rekonstrukci, dokončené v roce 2025. Stačí pouze doplnit vybavení dle vlastního stylu a můžete se okamžitě nastěhovat bez jakýchkoliv dalších investic.

Velkou výhodou je prostorná chodba, kam lze pohodlně umístit velké vestavěné skříně a získat tak dostatek úložného prostoru. Moderní kuchyně na míru nabízí praktické řešení pro každodenní vaření. Dalším benefitem je velký balkon, kam se pohodlně vejde posezení i zeleň pro vaše odpočinkové místo.

K bytu náleží také praktický sklep, ideální například na uložení kol či sportovního vybavení.
Byt se nachází ve výborné a klidné lokalitě na Proseku, hned vedle parku, s výbornou dostupností, metro je pár minut chůze, stejně jako veškerá občanská vybavenost.

Doporučuji osobní prohlídku.

Na tuto nemovitost Vám pomůžeme zajistit financování s nízkou úrokovou sazbou.

Základní informace

Celková plocha objektu49
Stav bytuPo rekonstrukci
VlastnictvíOsobní
Podlahová plocha41
V nadzemním podlaží2
Plocha lodžie7
Rekonstrukce bytuAno
Rok rekonstrukce bytu2025
ZdrojeDálkový vodovod, ústřední - dálkové
Topné tělesoRadiátory
Zdroj topeníÚstřední dálkové
Druh objektuPanelový

Další vlastnosti

Stav objektuPo rekonstrukci
Celkem nadzemních podlaží11
VýtahAno
Sklep1 m2
Sklepní kójeNe
KomoraNe
InternetAno
Pozemek k bytuNe
PoplatkyPlatby SVJ: 1 713,- Kč, Fond oprav: 934,- Kč, Celkem: 2 647,- Kč
Energetická náročnostC - Úsporná
Chcete vědět o nových nemovitostech jako první?