Archer Reality

Prodej bytu 2+kk, OV, 49 m2, Praha 1 - Nové Město, ul. Příčná

8 795 000,- Kč / za nemovitost včetně provize RK a právního servisu

Váš makléř

František Kroupa
prohlidka@archer-reality.cz
+420 602 107 903

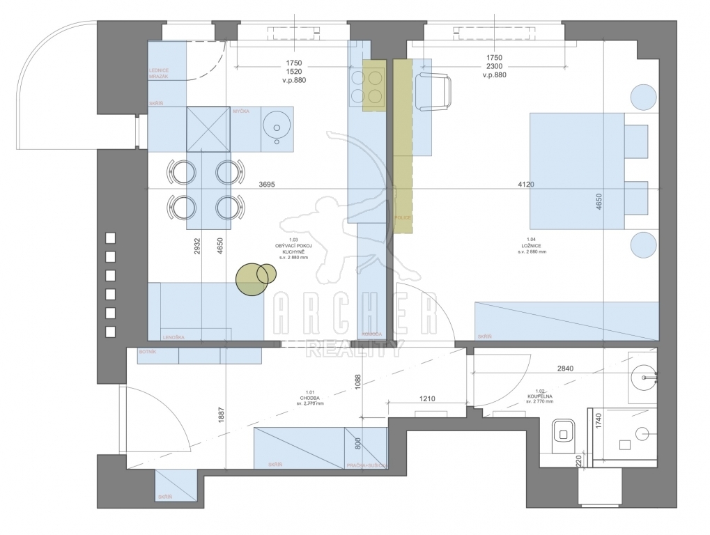
Nabízíme k prodeji byt 2+kk v OV, 49 m2, Praha 1 - Nové Město, ul. Příčná.
Designový funkcionalistický byt po citlivé rekonstrukci se nachází v centru Prahy, v ikonickém funkcionalistickém domě architekta Karla Kotase z let 1934–1935. Je po kompletní, nákladné a velmi citlivé rekonstrukci, která s maximálním respektem zachovala původní prvky a zároveň vnesla do interiéru komfort moderního bydlení. K dokončení stačí kuchyň a nábytek (arch. návrh je připraven).

Díky velkým oknům do vnitrobloku a kulatým luxferám je světlý a nádherně barevný, tak i atmosférou naplněný. Štukové omítky a stropní fabiony odkazují na dobový design. Moderní prvky a změna dispozice s respektem doplňují původní architekturu.
Hlavní pokoj s přípravou na kuchyň je dostatečně velký a členitý, druhý pokoj je výrazný dubovými parketami a čistotou. Chodba/ předsíň propojuje celý byt. Oproti původním 47 m2 se rekonstrukcí zvětšil na stávajících 49 m2.
Pokud budete mít zájem, dodáme návrh nábytku na míru od skvělé architektky.

Dům je čistý, udržovaný a neustále zvelebovaný. Velkorysé společné prostory, ale také obnovená červená fasáda umocňují exkluzivitu funkcionalismu.

Obrovským benefitem je lokalita a orientace do vnitrobloku. Úplné centrum, všude pěšky a přitom klid a výhled na věžičku Novoměstské radnice.

Doporučujeme prohlídku.
Třída G - Mimořádně nehospodárná - Energetický štítek budovy (PENB) nebyl dodán.

Základní informace

Celková plocha objektu49
Stav bytuPo rekonstrukci
VlastnictvíOsobní
Podlahová plocha49
V nadzemním podlaží2
ZdrojeElektro 230 V, dálkový vodovod, kanalizace, ústřední - dálkové
Topné tělesoRadiátory
Zdroj topeníÚstřední dálkové
Druh objektuCihlový
Stav objektuVelmi dobrý
Celkem nadzemních podlaží6
Celkem podzemních podlaží1

Další vlastnosti

VýtahAno
Sklepní kójeNe
KomoraNe
Poplatky
Energetická náročnostG - Mimořádně nehospodárná
Chcete vědět o nových nemovitostech jako první?