Archer Reality

Exkluzivně - Prodej domu (bytu) 4+kk/T/G, OV, 137 m2, Nymburk, ul. Na Splavech

9 049 000,- Kč / za nemovitost včetně provize RK a právního servisu

Váš makléř

Vojtěch Hanč
prohlidka@archer-reality.cz
+420 602 107 903

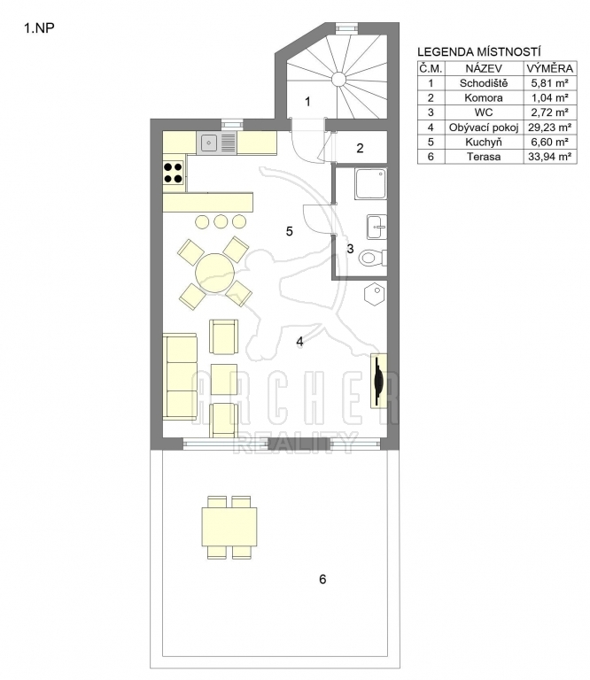
Exkluzivně nabízíme k prodeji dům 4+kk/T/G v OV, 137 m2, 35m2 terasa, garáž, Nymburk, ul. Na Splavech.
Moderní rodinný dům 4+kk s garáží a předzahrádkou v klidné části Nymburka. Z důvodu parcelace je dům řadový a je kolaudovaný jako byt. Velkým benefitem domu je terasa v 1. patře s výhledem na střechy domů a přímým vstupem z obývacího pokoje prosklenými dveřmi. Přes ulici a na jejím konci je park se stromy a keři. Celková plocha je 137m2, obytná 103m2.

Dům má tři nadzemní podlaží. Před vchodem je vlastní dlážděná předzahrádka s vjezdem do garáže. Vlevo vstoupíte prosklenými dveřmi do předsíně s vestavěnou skříní s velkým zrcadlem. Točité schody se stupy z masivního dubu jsou bezúdržbové a propojují přízemí, patro s kuchyní, obývacím pokojem s terasou a patro s ložnicemi.

Obývací pokoj je prosvětlený ze dvou stran, oknem přes kuchyňský kout a oknem a prosklenými dveřmi z terasy. Velkorysý prostor obývacího pokoje odděluje od kuchyně barový stůl. Kuchyňská linka je ve tvaru U a je plně vybavena vestavnými spotřebiči. V obývacím pokoji je velký jídelní stůl, křeslo a sedací souprava a mnoho místa okolo. Jsou zde kvalitní krbová kamna, kterými lze vytápět celý dům a snížit náklady na provoz.

Terasa je prostor pro venkovní relaxaci. Je z části dlážděná, vybavená stolem se slunečníkem a křesly. Z terasy vidíte na střechy okolních domů a na zeleň v okolí. Za dlážděním je nyní velký záhon s květinami a zeleninou. Západní směr terasy přináší prosvětlení obývacího pokoje odpoledním a večerním sluncem.

Z obývacího pokoje je vstup do koupelny s rohovou vanou se zástěnou, umyvadlem a toaletou. Vedle koupelny je komora s regály na uložení potravin a dalších věcí.

Točité schody vedou dále do dalšího poschodí se třemi ložnicemi. Ze dvou západních ložnic je výhled až do centra Nymburka. V jedné ložnici je velká vestavěná skříň se zrcadlem. Východní ložnice má výhled do zeleně. Z chodby je vstup do druhé koupelny s rohovou vanou, umyvadlem a toaletou.

V přízemí je velká garáž 27m2, vedle ní je technická místnost s plynovým kotlem se zásobníkem, který vytápí dům ústředním topením přes radiátory. Je zde místo pro uložení věcí a napojení pro pračku a sušičku. Z garáže je vstup do velké komory 6m2, vhodné pro uložení věcí. Ve většině obytných částí je na podlahách plovoucí podlaha s dekorem světlého dubu. V zátěžových místech je dlažba. V ložnicích jsou koberce. Okna jsou plastová s dvojskly, na západní straně vybavená zatahovacími venkovními roletami. To zajišťuje příjemné klima v horkých dnech. Dům je ve výborném stavu k nastěhování od 1.12.2025.

Okolí je plně vybaveno. Nedaleko je supermarket Albert. V dosahu jsou všechny typy obchodů, restaurace, školy, hřiště, sportoviště a služby.
Na tuto nemovitost Vám pomůžeme zajistit financování s nízkou úrokovou sazbou.
Doporučujeme prohlídku.

Základní informace

Celková plocha objektu137
Druh objektuSmíšený
Stav objektuVelmi dobrý
Poloha a typ objektuřadový
Rok kolaudace2007
Podlahová plocha137
Celkem nadzemních podlaží3
VýtahNe
InternetAno
Popis vybavení domuKuchyňská linka s barovým stolem a s vestavěnými spotřebičemi: indukční varnou deskou, horkovzdušnou a mikrovlnnou troubou, myčkou a dřezem s baterií s dřezovou sprchou. Vestavěné skříně se zrcadlovými dveřmi ve vstupní chodbě a v jedné z ložnic. Koupelnová skříň. Obytná stěna v obývacím pokoji.
Poskytovatel internetového připojeníO2
Typ internetového připojeníADSL

Další vlastnosti

Počet fází elektrického proudu3 fáze
Celková plocha pozemku117
Zastavěná plocha55
Plocha zahrady62
Příjezdová komunikaceS věcným břemenem
GarážAno
Plocha garáže26.90
Vyhrazené stáníAno
ZdrojePlynové - plyn kotel, plynové - kombi plyn kotel, elektro 400 V, dálkový vodovod, kanalizace
Topné tělesoRadiátory
Zdroj topeníPlynový kotel
Zdroj teplé vodyPlynový kotel
PoplatkyElektřina: 3 000,- Kč, Voda: 1 000,- Kč, Plyn: 3 000,- Kč, Celkem: 7 000,- Kč
Energetická náročnostD - Méně úsporná
Chcete vědět o nových nemovitostech jako první?