Archer Reality

Prodej RD 4+kk s T/ 3G, užitná plocha 318 m2, na pozemku 1632 m2, Zruč n/Sázavou, ul. Nad Ovčínem

15 650 000,- Kč / za nemovitost včetně provize RK a právního servisu

Váš makléř

Radek Vatka
prohlidka@archer-reality.cz
+420 602 107 903

Radek Vatka

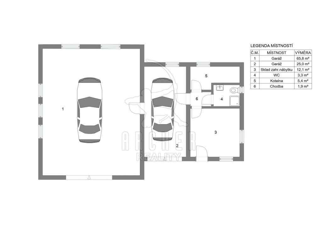
Nabízíme k prodeji RD typu bungalov, 4+kk (128,5 m2) s terasou (52 m2), s garáží (22,9 m2), závětřím (3 m2), extra dvojgaráží (112 m2), celkem 318 m2, na pozemku 1632 m2, Zruč n/ Sázavou
Rodinný dům z roku 2019 je vhodnou volbou pro ty z vás, kteří ocení funkčně a moderně řešený dům s dispozicí 4+kk, pečlivě udržovaný majiteli, k příjemnému bydlení a podnikání, vč. zajištěného soukromí díky umístění v klidné a žádané části Zruče n/S., v zeleni, na dosah centra. Oplocená udržovaná zahrada s terasou a s bazénem se slanou vodou je skutečnou oázou klidu.

Dům nabízí prostornou vstupní chodbu s vestavěnými skříněmi, s přímým vstupem do přilehlé garáže (1 vůz). Chodba vede do velkoryse
řešeného, světlého obývacího pokoje (haly) s plně vybaveným kuchyňským koutem (sklokeramická deska, elektrická trouba, digestoř,
myčka, lednice s mrazákem), s přímým vstupem na krytou zahradní terasu s posezením. Součástí obývacího pokoje je krb na dřevo,
dotvářející příjemnou atmosferu domova. 2 dětské pokoje jsou s přímými vstupy na terasu, oddělená ložnice. Nedílnou součástí je prostorná
koupelna s vanou, sprchovým koutem, toaletou, bidetem, umyvadlem a tepelným žebříkem. Zvláště je pak umístěna spižírna a samostatná
toaleta (pro hosty). Podlahová krytina tvořena laminátovou plovoucí podlahou a dlažbou.Nadstandardní interierové dveře (s magnetickým
dovíráním) s obložkami.
Dům je nepodsklepený, s valbovou střechou (keramická taška Tondach). Fasáda vč. zateplení, plastová okna v celém domě. Podlahové
vytápění. Vlastní vytápění a ohřev vody zajišťuje výkonný plynový kotel (vč. 2 bojlerů). K úspoře energie slouží instalace solárních panelů na
střeše garáže. S průkazem energetické náročnosti budovy třídy B, velmi úsporná, s nízkými provozními náklady.
Napojení domu na komplet inženýrské sítě (plyn, elektřina, obecní vodovod/ kanalizace). Kamerový systém.

Benefitem je samostatná dvojgaráž s kanceláří, sociálním zařízením (sprcha/ toaleta) a technickou místností. Lze využít jako dílnu nebo sklad. Výška vjezdu 3,5m.
Součástí udržované zahrady je zastřešený bazén ( 6 x 3 x 1,5m), 4 parkovací místa na pozemku před vjezdem do garáží.

Velmi dobrá dopravní dostupnost, napojení na D1 do 7 minut ( exit 56km), vzdálenost do Prahy do 40 min. ( metro Opatov), do Kutné Hory
do 30 min.. Bus, žel. stanice v místě, veškerá občanská vybavenost (školka, škola, služby, restaurace, pošta, lékař, nákupní možnosti).
Malebná okolní příroda, lesy, řeka Sázava v sousedství (mimo záplavovou oblast), klid, cyklostezky (kolo, běh). Aktivní místo pro spokojené
bydlení.

Na tuto nemovitost Vám pomůžeme zajistit výhodné financování.
Zavolejte a přijďte se podívat.

Základní informace

Celková plocha objektu180.50
Druh objektuCihlový
Stav objektuVelmi dobrý
Poloha a typ objektuSamostatný
Stáří objektu2019
Podlahová plocha128.50
Plocha terasy52
Celkem nadzemních podlaží1
InternetAno
Kabel TVVodafone, jiné
Vybavení domuČástečně
Popis vybavení domuKuchyňská linka vč. elektro spotřebičů (sklokeramická deska, elektrická trouba, digestoř, myčka, lednice s mrazákem), vestavěné skříně, nábytek po dohodě.

Další vlastnosti

Nízkoenergetický důmAno
Počet fází elektrického proudu3 fáze
Solarní panelyAno
Celková plocha pozemku1632
Zastavěná plocha342
Plocha zahrady1290
Příjezdová komunikaceObecní
GarážAno
Plocha garáže135
Garážové stáníAno
Vyhrazené stáníAno
ZdrojeKrb + kamna, plynové - plyn kotel, solární panely, elektro 230 V, elektro 400 V, dálkový vodovod, kanalizace, podlahové
Topné tělesoPodlahové vytápění
Zdroj topeníPlynový kotel
Zdroj teplé vodyPlynový kotel
PoplatkyElektřina: 4 400,- Kč, Voda: 2 250,- Kč, Plyn: 7 660,- Kč, Celkem: 14 310,- Kč
Energetická náročnostB - Velmi úsporná
Chcete vědět o nových nemovitostech jako první?