Archer Reality

Exkluzivně - Prodej RD 6+1 s užitnou plochou 340 m2 na pozemku 730m2, Praha 4-Točná, ul. Ke Spálence

29 950 000,- Kč / za nemovitost včetně provize RK a právního servisu

Váš makléř

Radek Vatka
prohlidka@archer-reality.cz
+420 602 107 903

Radek Vatka

Prostorný rodinný dům 6+1 s terasou (299 m2), dvojgaráží (41 m2), celkem 340 m2, s udržovanou zahradou, na pozemku 730 m², po rekonstrukci, v žádané a klidné lokalitě Prahy 12 – Točné, ul. Ke Spálence
Dům z roku 1997, který prošel rekonstrukcí v roce 2025, s udržovanou zahradou, dvojgaráží a samostatným parkovacím stáním (pro 1 vůz) s dispozicí 6+1 se 3 koupelnami a technickým zázemím nadchne svým více jak dostatečným prostorem, komfortem a umístěním v klidné a žádané lokalitě Prahy 12 – Točné, v zeleni, mezi Břežanským údolím a Točenskou roklí.

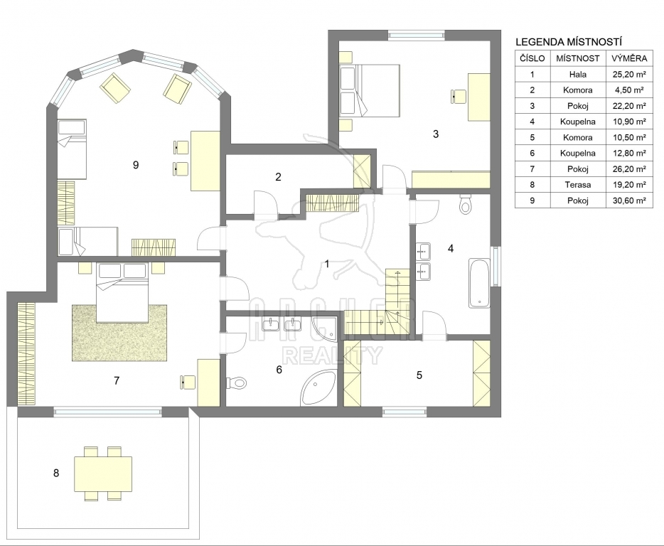
Přízemí nabízí vstupní zádveří, prostornou halu se schodištěm a velkorysý, světlý a klimatizovaný obývací pokoj s velkými okny, dostatkem přirozeného světla a přímým vstupem na udržovanou zahradu s posezením. Součástí je samostatná plně vybavená kuchyň včetně elektrospotřebičů, spíž propojená s garáží, ložnice, pracovna, koupelna se sprchovým koutem a toaletou a technická místnost s elektrokotlem a bojlerem.
Příjemnou atmosféru interiéru podtrhuje moderní krb s teplovodním výměníkem, sloužící i pro vytápění a ohřev vody.
První patro, propojené dřevěným schodištěm, nabízí 3 neprůchozí pokoje, 2 koupelny s oknem (vana, rohová vana, sprchový kout a toaleta). Z ložnice je přímý vstup na terasu s výhledem do klidného okolí. Dominantou patra je prostorná galerie, vkusně prosvětlená střešním oknem. Dále se zde nachází prádelna (technická místnost) a komora.

Technický stav a vybavení:
dům je zateplený, nepodsklepený • na podlaze dlažba a laminátová plovoucí podlaha •
plastová okna, na jihozápadní straně s předokenními žaluziemi • kombinace podlahového vytápění a radiátorů • vytápění a ohřev vody elektrokotlem s bojlerem (v zimních měsících zajištěno krbem) • střešní krytina Bramac • alarm, vstupní kamera • elektřina 230/400V • napojení na obecní vodovod, odpad řešen jímkou. Napojení na veřejnou kanalizaci je v obecním plánu do roku 2027.
Velkým benefitem prostorná dvojgaráž (42 m2) a 1 venkovní parkovací místo.

Dostupná občanská vybavenost (školka, škola, služby, nákupy, lékař, pošta) se nachází v sousedních Dolních Břežanech. V blízkosti domu je autobusová zastávka směr metro C Kačerov. Velmi dobrá dopravní dostupnost autem cca 15 min k metru Opatov vč. rychlého napojení na Pražský okruh. V přímém sousedství se nachází Přírodní park Modřanská rokle a Břežanské údolí.

Na tuto nemovitost vám pomůžeme zajistit financování s výhodnou úrokovou sazbou.
Zavolejte a přijďte se podívat.

Základní informace

Celková plocha objektu298.80
Druh objektuCihlový
Stav objektuPo rekonstrukci
Poloha a typ objektuSamostatný
Stáří objektu1997
Rok kolaudace1997
Rok rekonstrukce2025
Podlahová plocha279.60
Plocha terasy19.20
Celkem nadzemních podlaží2
VýtahNe
InternetAno

Další vlastnosti

Kabel TVJiné
Vybavení domuČástečně
Popis vybavení domuKuchyňská linka vč. elektro spotřebičů (indukční deska, elektrická horkovzdušná trouba, mikrovlnka, myčka, vestavěná lednice s mrazákem, digestoř)
Počet fází elektrického proudu3 fáze
Celková plocha pozemku730
Zastavěná plocha256
Plocha zahrady474
Příjezdová komunikaceObecní
GarážAno
Plocha garáže41.84
ZdrojeKrb + kamna, elektro kotel, elektro 230 V, elektro 400 V, dálkový vodovod, septik, podlahové
Topné tělesoPodlahové vytápění, Radiátory, Krbová kamna
Zdroj topeníElektrokotel, Krbová kamna, Pára s výměníkem
Zdroj teplé vodyBojler - elektro
PoplatkyJiné: 10 850,- Kč, Celkem: 10 850,- Kč
Energetická náročnostF - Velmi nehospodárná
Chcete vědět o nových nemovitostech jako první?