Archer Reality

Prodej bytu po rekonstrukci 2+kk/ sklep, 38 m2, Dalovice (okres Karlovy Vary), ul. Pod Parkem

3 670 000,- Kč / za nemovitost včetně provize RK a právního servisu

Váš makléř

Václav Trnka
prohlidka@archer-reality.cz
+420 602 107 903

Nabízíme k prodeji byt po rekonstrukci 2+kk, 33 m2, sklep 5 m2, v malém bytovém domě, podíl na zahradě, Dalovice (okres Karlovy Vary), ul. Pod Parkem.
Byt se nachází v prvním podlaží cihlového domu ve slepé ulici, pod parkem Dalovického zámku, v klidné lokalitě. Malý bytový dům o čtyřech bytových jednotkách, z toho nabízíme 2+kk, s oknem do ulice a s francouzským oknem na dvůr. K bytu náleží komora s pračkou na chodbě.
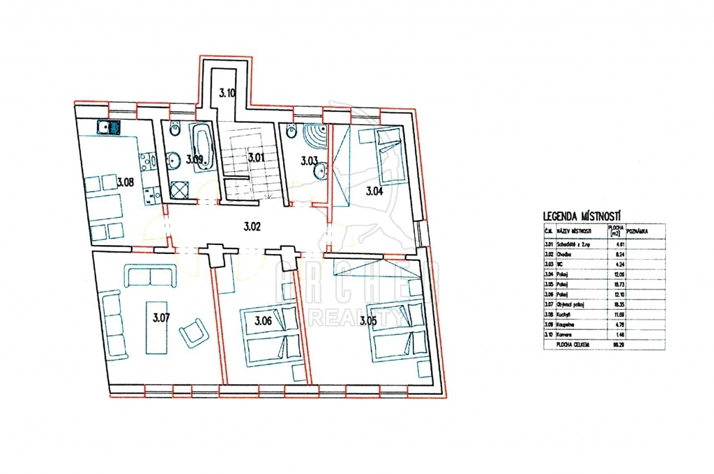
(v třetím podlaží je k prodeji i prostorný 4+1 po rekonstrukci s komorou na chodbě a sklepem, 92 m2, za 8,81 mil. Kč).
Dům po kompletní rekonstrukci, nová střecha, nová elektřina, voda, odpady, rozvody, podlahy, plastová okna. K bytům v patře patří komory, podíl na dvoře za domem, dva altány a zahrada. Ze zahrady přímý vstup na zámeckou zahradu, parkování před domem.
Dobrá dopravní dostupnost, centrum K. Varů 3 km, v okolí veškerá občanská vybavenost, příroda.
Na tuto nemovitost Vám pomůžeme zajistit financování s výhodnou hypotékou od 4,39 %, případně Družstevním financováním, zaplatíte 20% a bydlíte, zbytek splátky bez posuzování příjmů.
Pojďte se podívat, veškeré informace na prohlídce.
Třída G - Mimořádně nehospodárná - Energetický štítek budovy (PENB) nebyl dodán.

Základní informace

Celková plocha objektu38
Stav bytuPo rekonstrukci
VlastnictvíOsobní
Podlahová plocha33
V nadzemním podlaží1
Bezbariérový bytAno
Rekonstrukce bytuAno
Rok rekonstrukce bytu2022
Vybavení bytuAno
Popis vybavení bytuKuchyně se všemi spotřibiči,
ZdrojeElektrické - přímotopy, plynové - kombi plyn kotel, elektro 230 V, elektro 400 V, dálkový vodovod, kanalizace, podlahové
Počet fází elektrického proudu3 fáze

Další vlastnosti

Jističe16A
Zdroj teplé vodyPlynový kondenzační kotel
Druh objektuCihlový
Stav objektuPo rekonstrukci
Celkem nadzemních podlaží3
Celkem podzemních podlaží1
Rekonstrukce domuAno
Rok rekonstrukce domu2022
VýtahNe
GarážNe
Garážové stáníNe
Vyhrazené stáníNe
Sklep5 m2
Sklepní kójeAno
Plocha sklepní kóje5
Podlaží sklepní kóje-1
KomoraNe
InternetAno
Kabel TVJiné
Pozemek k bytuNe
Pozemek ve vlastnictví SVJAno
PoplatkyPlatby SVJ: 1 000,- Kč, Elektřina: 1 000,- Kč, Voda: 300,- Kč, Plyn: 2 000,- Kč, Jiné: 200,- Kč, Celkem: 4 500,- Kč
Energetická náročnostG - Mimořádně nehospodárná
Chcete vědět o nových nemovitostech jako první?