Archer Reality

Prodej bytu 2+kk/K,T,S OV, 87 m2, garážové stání, Praha 9 - Kbely, ul. Sedlářova

9 321 000,- Kč / za nemovitost včetně provize RK a právního servisu

Váš makléř

Václav Trnka
prohlidka@archer-reality.cz
+420 602 107 903

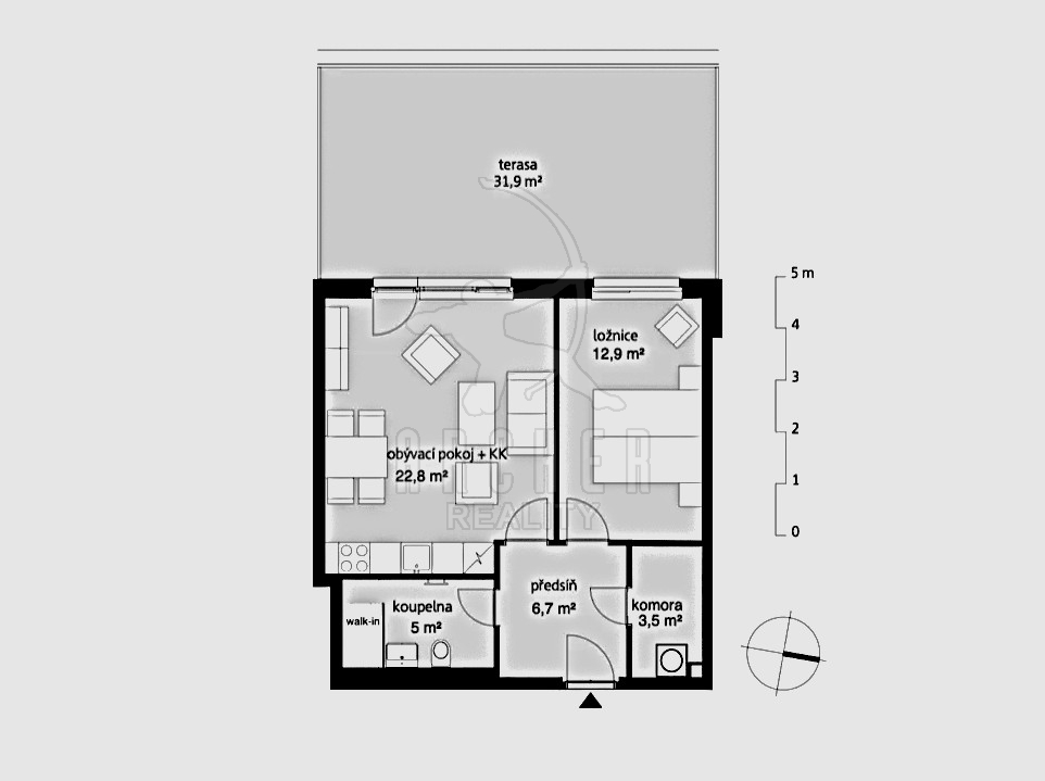
Nabízíme k prodeji novostavbu bytu 2+kk/komora, OV, 52,6 m2, 31,90 m2 terasa, 2,5 m2 sklepní kóje, garážové stání, Praha 9 - Kbely, ul. Sedlářova.
Byt se nachází ve druhém podlaží novostavby bytového domu v klidné lokalitě Prahy 9 - Kbely. Nový byt, nikdy se v něm nebydlelo. Kuchyňská linka včetně spotřebičů - horkovzdušná trouba, digestoř, indukční deska, myčka. Stropy pohledový beton, venkovní rolety, bezpečnostní dveře, koupelna s velkým sprchovým koutem a toaletou, komora. Na terase dlažba a zatravněná plocha. K bytu náleží sklepní kóje, garážové stání. V domě kolárna se sprchovým koutem.
Dobrá dopravní dostupnost, vlakem Praha Hlavní nádraží 18 min., autobusem metro C Letňany 6 min., v okolí veškerá občanská vybavenost, příroda krajinný park Havraňák 800 m.
Na tuto nemovitost Vám zajistit financování s nízkou úrokovou sazbou od 4,39%, případně družstevní financování - zaplatíte 20% a bydlíte, zbytek splátky bez prokazování příjmů.
Doporučujeme prohlídku.

Základní informace

Celková plocha objektu84.50
Stav bytuNovostavba
VlastnictvíOsobní
Podlahová plocha52.60
V nadzemním podlaží2
Plocha terasy31.90
Bezbariérový bytAno
Vybavení bytuAno
Popis vybavení bytuKompletně zařízená kuchyně, indukční deska, horkovzdušná trouba, digestoř, mikrovlnná trouba, myčka....
ZdrojeElektro 230 V, dálkový vodovod, kanalizace, ústřední - dálkové
Typ internetového připojeníOptika
Počet fází elektrického proudu3 fáze

Další vlastnosti

Jističe16A
Topné tělesoRadiátory
Zdroj topeníÚstřední dálkové
Druh objektuSkeletový
Stav objektuNovostavba
Celkem nadzemních podlaží6
Celkem podzemních podlaží1
VýtahAno
Garážové stáníAno
Sklepní kójeAno
Plocha sklepní kóje2.50
Podlaží sklepní kóje1
KomoraNe
InternetAno
Kabel TVJiné
Pozemek k bytuNe
Pozemek ve vlastnictví SVJAno
PoplatkyPlatby SVJ: 5 200,- Kč, Elektřina: 1 000,- Kč, Jiné: 200,- Kč, Celkem: 6 400,- Kč
Energetická náročnostB - Velmi úsporná
Chcete vědět o nových nemovitostech jako první?