Archer Reality

Prodej bytu 4+kk/T/K, OV, 151 m2, 2 park.st., Lysá nad Labem - Litol (okres Nymburk), ul. Palackého

10 400 000,- Kč / za nemovitost včetně provize RK a právního servisu

Váš makléř

Václav Trnka
prohlidka@archer-reality.cz
+420 602 107 903

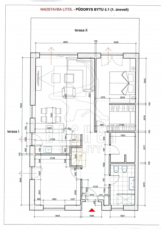
Nabízíme k prodeji novostavbu nízkoenergetického bytu 4+kk, 120 m2, terasa 22 m2, 9 m2 kóje, dvě venkovní parkovací stání, Lysá nad Labem - Litol (okres Nymburk), ul. Palackého.
Byt se nachází ve druhém podlaží zděného domu, v klidné ulici Lysé nad Labem, místní části Litol. Dispozice 4+kk, terasa. K bytu náleží sklepní kóje 9 m2 a dvě parkovací stání na dvoře před domem.
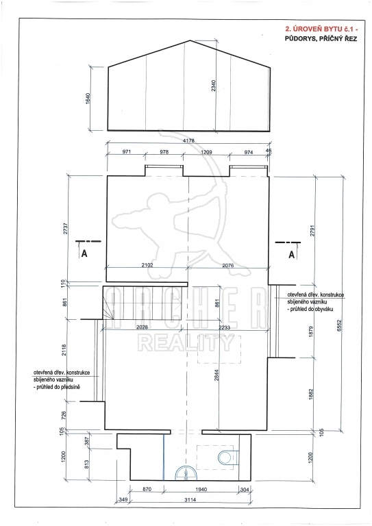
Jedná se o mezonetový byt, má dvě koupelny s toaletou, spodní s vanou, horní se sprchovým koutem. Podlahové topení, hliníková okna a dveře, plovoucí podlahy, vytápění a teplou vodu zajišťuje plynový kondenzační kotel. Dům a všechny byty jsou postaveny z kvalitních materiálů, s rozmyslem, aby vše bylo maximálně funkční. Horní patro k dostavbě.
Dobrá dopravní dostupnost, vlakové nádraží 10 min. pěšky, vlakem Praha Masarykovo nádraží 31 min., v okolí veškerá občanská vybavenost, příroda.
Na tuto nemovitost Vám zajistíme financování hypotékou s nízkou úrokovou sazbou od 4,39%.
Pojďte se podívat, veškeré informace na prohlídce.

Základní informace

Celková plocha objektu142
Stav bytuNovostavba
VlastnictvíOsobní
Podlahová plocha120
V nadzemním podlaží2
Plocha terasy22
Vybavení bytuČástečně
Popis vybavení bytuPlynový kondenzační kotel, vybavená koupelna,
ZdrojePlynové - kombi plyn kotel, elektro 230 V, elektro 400 V, dálkový vodovod, kanalizace
Topné tělesoPodlahové vytápění
Zdroj topeníPlynový kondenzační kotel
Zdroj teplé vodyPlynový kondenzační kotel

Další vlastnosti

Druh objektuCihlový
Stav objektuNovostavba
Celkem nadzemních podlaží2
VýtahNe
Vyhrazené stáníAno
Sklepní kójeAno
Plocha sklepní kóje9
Podlaží sklepní kóje1
KomoraNe
InternetAno
Kabel TVJiné
Pozemek k bytuNe
Pozemek ve vlastnictví SVJAno
PoplatkyElektřina: 1 500,- Kč, Voda: 200,- Kč, Plyn: 2 000,- Kč, Jiné: 500,- Kč, Celkem: 4 200,- Kč
Energetická náročnostB - Velmi úsporná
Chcete vědět o nových nemovitostech jako první?