Archer Reality

Prodej bytu 3+kk/S, OV, 72m2, Říčany (okres Praha-východ), ul. Olivova

7 800 000,- Kč / za nemovitost + provize RK a právní servis

Váš makléř

Ing. Josef Vodrážka
prohlidka@archer-reality.cz
+420 602 107 903

Nabízíme k prodeji byt 3+kk/S v OV, 67m2, 5m2 sklep, Říčany (okres Praha-východ), ul. Olivova.
Světlý byt v osobním vlastnictví s podílem na krásné společné a udržované zahradě o velikosti 620 m2.
Byt se nachází ve 2. patře (3. NP) menšího cihlového domu se šesti jednotkami v atraktivní a klidné části Říčan.
Tato nemovitost představuje ideální kombinaci pohodlí bytu a výhod rodinného domu – k dispozici je zahrada, parkování i příjemný výhled do zeleně. Podobné nabídky se v této lokalitě objevují jen výjimečně.
Byt je po kompletní rekonstrukci – nové podlahy (vinyl, dlažba), elektroinstalace, kuchyňská linka, interiérové dveře.
Příjemné klima po celý rok díky nové foukané izolaci střechy,
koupelna ve funkčním stavu s možností úprav dle vlastních představ.
Orientace na východ a jih - dostatek denního světla,
výhled do přírody a nad okolní zástavbu – zajištěné soukromí.
Velkou výhodou je vlastní plynový kotel, který řeší i ohřev vody a tepelnou pohodu v bytě, kde veškeré náklady má majitel pod svojí kontrolou.
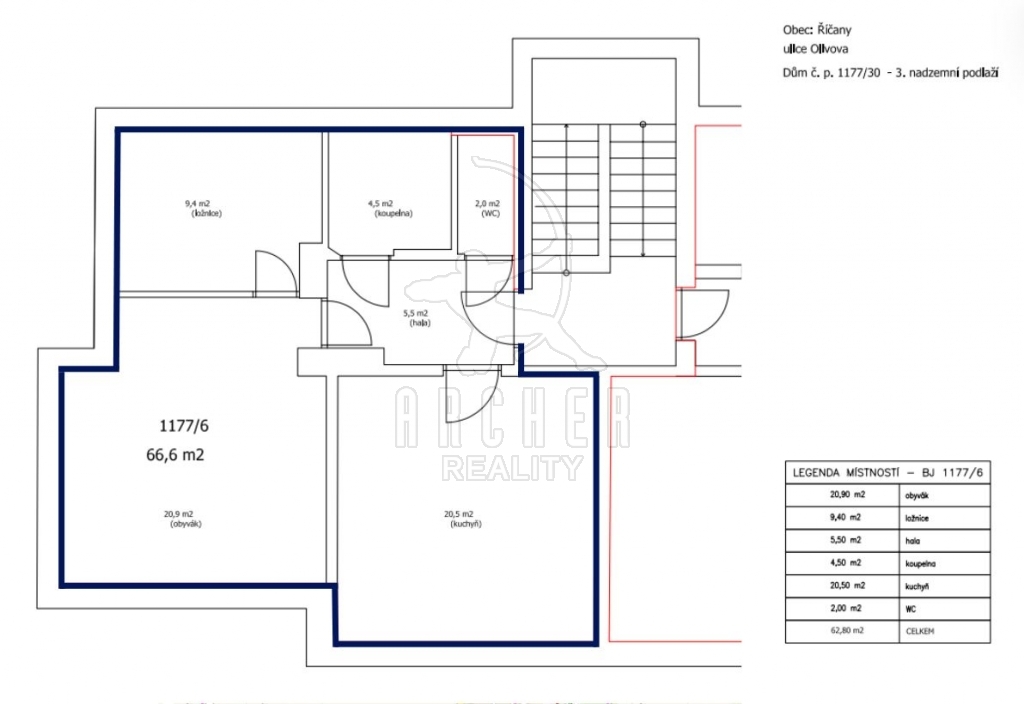
Dispozice:
- obývací pokoj s kuchyňským koutem (cca 20,5 m2)
- dvě podkrovní ložnice (20,9 m2 a 9,4 m2, jedna průchozí s možností úpravy)
- chodba (5,5 m2), koupelna (4,5 m2), samostatné WC (2 m2)
- sklepní kóje (5,4 m2)
Zahrada a společné prostory:
- podíl na zahradě o velikosti 620 m² – ideální pro relaxaci, děti i zahradničení
- společné sklepní prostory (kolárna/kočárkárna, sklad)
- možnost parkování na pozemku nebo před domem
Dům je po rekonstrukci (fasáda, střecha včetně izolace, klempířské prvky, plot, vjezd, sklepní okna).
SVJ disponuje prostředky na dokončení fasády a úpravu vjezdu.
Další výhodou této nemovitosti je klidný dům s dlouhodobými vlastníky.
Lokalita Říčany patří dlouhodobě mezi nejvyhledávanější místa k bydlení v ČR. Nabízejí kompletní občanskou vybavenost a zároveň blízkost přírody, základní škola pouhé 2 bloky od domu,
v docházkové vzdálenosti školky, gymnázia, lékaři, obchody, kavárny i náměstí a vlakové nádraží cca 10 minut pěšky - přímé spojení do Prahy každých 15 minut (cca 25 minut jízdy).
V okolí lesy, cyklostezky, dětská hřiště, rybník Marvánek, Jureček i další rekreační místa
Investiční příležitost:
Byt je vhodný jak pro vlastní bydlení, tak jako investice - v Říčanech je dlouhodobě vysoká poptávka po nájemním bydlení.
Na tuto nemovitost Vám pomůžeme zajistit financování s nízkou úrokovou sazbou.
Doporučujeme prohlídku.
Třída G - Mimořádně nehospodárná - Energetický štítek budovy (PENB) nebyl dodán.

Základní informace

Celková plocha objektu72
Stav bytuPo rekonstrukci
VlastnictvíOsobní
Podlahová plocha67
V nadzemním podlaží3
Bezbariérový bytNe
Rok rekonstrukce bytu2025
Vybavení bytuČástečně
Popis vybavení bytuKuchyňská linka spotřebiče
ZdrojePlynové - kombi plyn kotel, elektro 230 V, dálkový vodovod, kanalizace
Topné tělesoRadiátory
Zdroj topeníPlynový kotel

Další vlastnosti

Zdroj teplé vodyPlynový kondenzační kotel
Druh objektuCihlový
Stav objektuPo rekonstrukci
Celkem nadzemních podlaží3
Celkem podzemních podlaží1
Rekonstrukce domuAno
Rok rekonstrukce domu2018
VýtahNe
Sklep5 m2
Sklepní kójeNe
KomoraNe
Kabel TVJiné
Pozemek k bytuAno
Plocha pozemku620
PoplatkyPlatby SVJ: 800,- Kč, Fond oprav: 2 000,- Kč, Elektřina: 1 000,- Kč, Voda: 800,- Kč, Plyn: 1 500,- Kč, Celkem: 6 100,- Kč
Energetická náročnostG - Mimořádně nehospodárná
Chcete vědět o nových nemovitostech jako první?