Archer Reality

Exkluzivně - Prodej bytu 4+kk/T/G, OV, 137 m2, Nymburk, ul. Na Splavech

9 049 000,- Kč / za nemovitost včetně provize RK a právního servisu

Váš makléř

Vojtěch Hanč
prohlidka@archer-reality.cz
+420 602 107 903

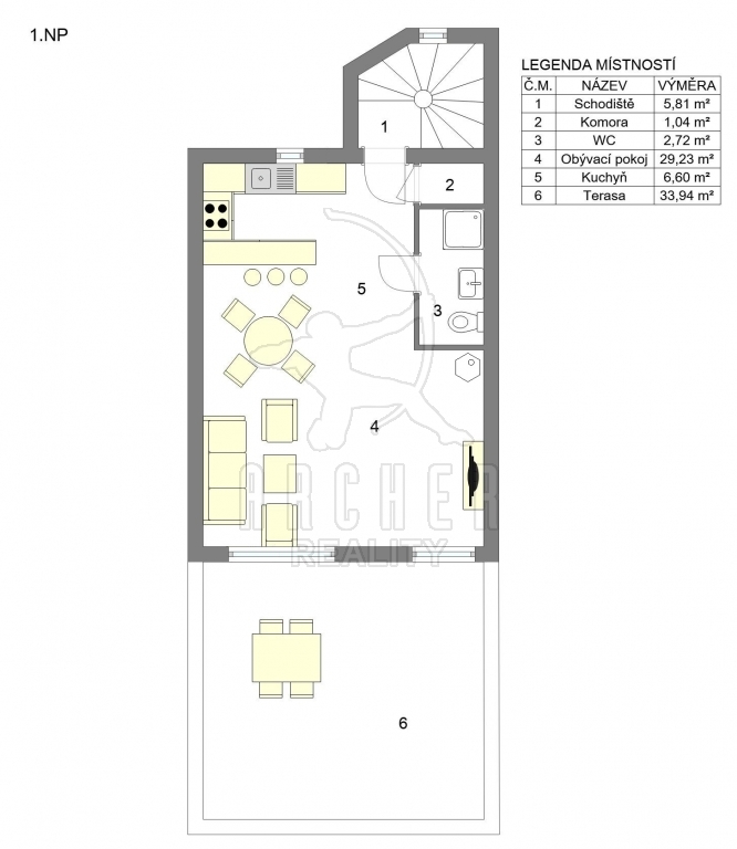
Exkluzivně nabízíme k prodeji byt 4+kk/T/G v OV, 137 m2, 35m2 terasa, garáž, Nymburk, ul. Na Splavech
Mezonetový byt 4+kk s garáží v klidné části Nymburka, nedaleko centra města.

Celková plocha je 137 m2, obytná část 103 m2. Možnost parkování dalšího auta na vlastním pozemku před garáží. Dům disponuje nadstandardním vybavením oproti sousedním jednotkám jako masivní dubové schodiště, funkční krbová kamna či obložkové zárubně dveří.

V přízemí je velká garáž (27 m2) se samostatnou komorou (6 m2). Dále technická místnost s připojením pro pračku a sušičku, s dalšími úložnými prostory a s plynovým kotlem napojeným na ústřední topení. V předsíni jsou dvě velké vestavěné skříně.

V prvním patře se nachází prostorný obývací pokoj oddělený od kuchyně pracovním pultem. Kuchyňská linka ve tvaru U je plně vybavena vestavnými spotřebiči. V obývacím pokoji jsou krbová kamna, která v zimním období mohou snížit náklady na vytápění.

Z pokoje je přístup na terasu se zahrádkou (35 m2). V tomto patře je také koupelna se sprchovým koutem, spojená s WC, a dále komora s regály. Veškeré vybavení obývacího pokoje a kuchyně zde případně může zůstat.

V horním patře jsou tři menší ložnice, jedna z nich je vybavena velkou vestavěnou skříní se zrcadlem. Východní ložnice má výhled do zeleně. V tomto patře je druhá, větší koupelna s rohovou vanou, umyvadlem a WC.

Ve většině obytných částí je na podlahách plovoucí podlaha s dekorem světlého dubu, v ložnicích jsou koberce. V zátěžových místech je dlažba. Okna jsou plastová s dvojskly, na západní straně opatřená zatahovacími venkovními roletami, které v zimě zabraňují úniku tepla a v létě udržují uvnitř příjemné klima.

Dům je ve výborném stavu, k nastěhování od 1.12.2025.

Okolí domu disponuje veškerou občanskou vybaveností – Hypermarket Albert v těsné blízkosti, v dosahu jsou restaurace, školy, hřiště, sportoviště a další služby. Vlakové nádraží je v docházkové vzdálenosti 15 min.
Na tuto nemovitost Vám pomůžeme zajistit financování s nízkou úrokovou sazbou.
Doporučujeme prohlídku.

Základní informace

Celková plocha objektu137
Stav bytuVelmi dobrý
VlastnictvíOsobní
Podlahová plocha137
V nadzemním podlaží2
Bezbariérový bytNe
Vybavení bytuAno
Popis vybavení bytuKuchyňská linka s barovým stolem a s vestavěnými spotřebičemi: indukční varnou deskou, horkovzdušnou a mikrovlnnou troubou, myčkou a dřezem s baterií s dřezovou sprchou. Vestavěné skříně se zrcadlovými dveřmi ve vstupní chodbě a v jedné z ložnic. Koupelnová skříň. Obytná stěna v obývacím pokoji.
ZdrojePlynové - plyn kotel, elektro 400 V, dálkový vodovod, kanalizace
Poskytovatel internetového připojeníO2
Typ internetového připojeníADSL
Počet fází elektrického proudu3 fáze

Další vlastnosti

Topné tělesoRadiátory
Zdroj topeníPlynový kotel
Zdroj teplé vodyPlynový kotel
Druh objektuSmíšený
Stav objektuVelmi dobrý
Celkem nadzemních podlaží3
VýtahNe
GarážAno
Vyhrazené stáníAno
Sklepní kójeNe
KomoraAno
Plocha komory2
Podlaží komora2
InternetAno
PoplatkyElektřina: 3 000,- Kč, Voda: 1 000,- Kč, Plyn: 3 000,- Kč, Celkem: 7 000,- Kč
Energetická náročnostD - Méně úsporná
Chcete vědět o nových nemovitostech jako první?