Archer Reality

Prodej bytu 3+1/L/S, OV, 81 m2, Liberec - Liberec VI-Rochlice, ul. Ježkova

4 990 000,- Kč / za nemovitost včetně provize RK a právního servisu

Váš makléř

Rostislav Sedláček
prohlidka@archer-reality.cz
+420 602 107 903

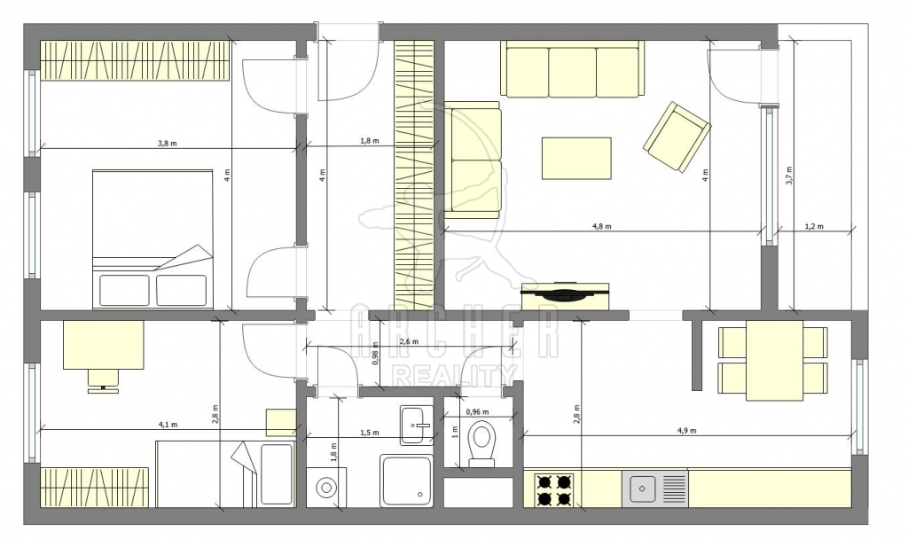
Nabízíme k prodeji byt 3+1/L/S v OV, 81 m2 (4.40m2 lodžie, 1.60m2 sklep), Liberec - Liberec VI-Rochlice, ul. Ježkova
Byt se nachází v oblíbené a klidné části Liberce - Rochlicích.
Tato lokalita nabízí kompletní občanskou vybavenost a výbornou dopravní dostupnost jak do centra města, tak i na dálnici směr Praha. V okolí je dostatek zeleně, parků, cyklostezek a dětských hřišť, takže se zde skvěle žije jak rodinám s dětmi, tak i aktivním jednotlivcům.

Noví majitelé bytu ocení především jeho velkorysý prostor.
Kuchyně potěší svou velikostí i možností umístit velký jídelní stůl pro společné rodinné chvíle. Z kuchyně se vstupuje do velkého obývacího pokoje, orientovaného na jižní stranu, díky čemuž je krásně prosvětlený po celý den. Z obývacího pokoje je navíc přístup na lodžii. Byt dále disponuje dvěma dalšími pokoji.

Od roku 2010 prošel byt postupnou rekonstrukcí - vyzděné jádro, nová elektroinstalace a další úpravy zajišťují, že vás nečekají žádné velké investice.

Praktické plus navíc:
Velkým bonusem je uzamykatelná sušárna hned u vstupu do bytu. Tu využívají pouze tři byty na patře, takže nabízí dostatek místa například pro kočárek nebo jízdní kola.

Na tuto nemovitost Vám pomůžeme zajistit financování s nízkou úrokovou sazbou.

Doporučujeme prohlídku.
Třída G - Mimořádně nehospodárná - Energetický štítek budovy (PENB) nebyl dodán.

Základní informace

Celková plocha objektu81
Stav bytuVelmi dobrý
VlastnictvíOsobní
Podlahová plocha75
V nadzemním podlaží2
Plocha lodžie4.40
Bezbariérový bytAno
Rekonstrukce bytuAno
Rok rekonstrukce bytu2010
Vybavení bytuAno
Popis vybavení bytuKuchyňská linka, koupelna, 2x skříň
Zdrojeústřední - dálkové

Další vlastnosti

Topné tělesoRadiátory
Zdroj topeníÚstřední dálkové
Druh objektuPanelový
Stav objektuDobrý
Celkem nadzemních podlaží8
Celkem podzemních podlaží1
VýtahAno
GarážNe
Garážové stáníNe
Vyhrazené stáníNe
Sklep1.60 m2
Sklepní kójeNe
KomoraNe
InternetAno
Pozemek k bytuNe
PoplatkyFond oprav: 2 304,- Kč, Celkem: 2 304,- Kč
Energetická náročnostG - Mimořádně nehospodárná
Chcete vědět o nových nemovitostech jako první?